【売家】【貸家】大通り沿い・店舗利用可能
- 住所
- 南砺市高儀14-2
- 築年月
- 平成16年
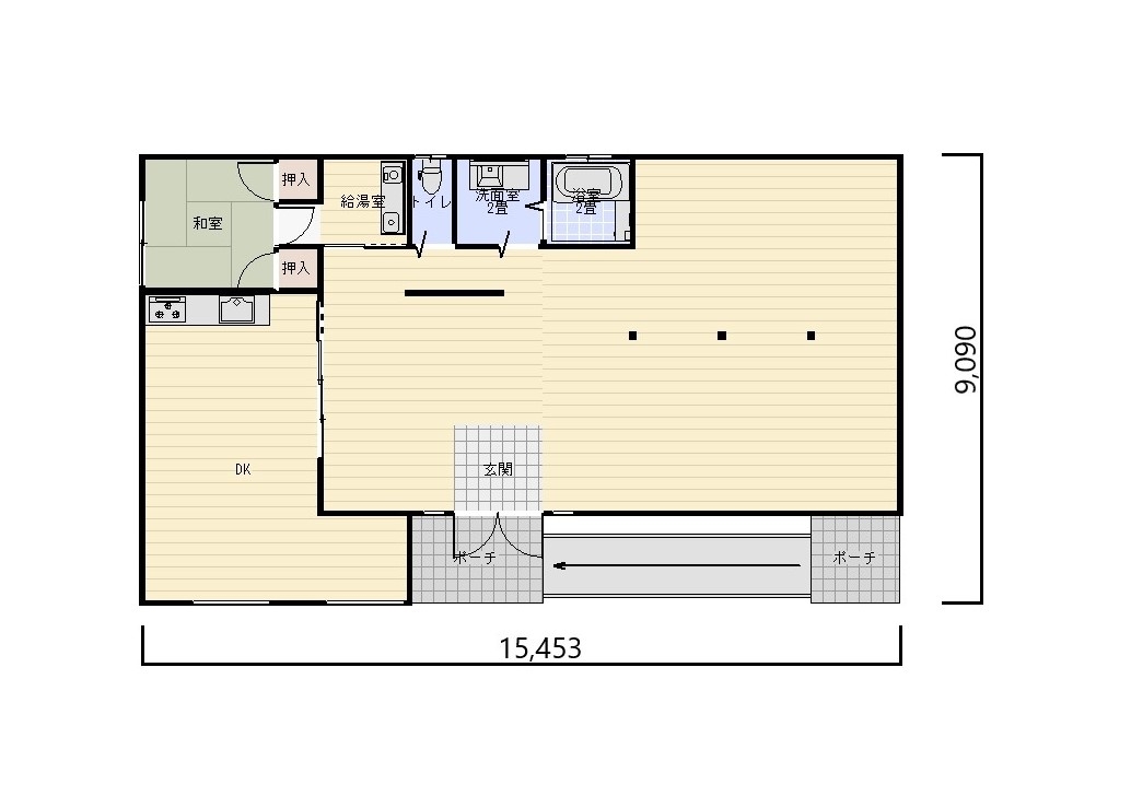
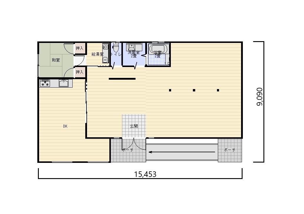
- 間取り
- 2LDK
- 物件種目
- 売家/貸家
- 値段(売買)
- 1,520万円(税込)
- 値段(賃貸)
- 10万円/月(税込)
| 敷地面積 | 614.54㎡ | 
|---|---|
| 延床面積 | 122.29㎡ | 
| 構造 | 木造瓦葺平屋建 | 
| 地目 | 宅地 | 
| 都市計画 | 非線引区域 | 
| 用途地域 | 無指定 | 
| 建ぺい率/容積率 | 60%/200% | 
| 接道状況 | 東側公道 | 
| 校区 | 福野小学校・福野中学校 | 
| 駐車台数 | 8台(詳細特記記載) | 
| 最寄り駅 | 城端線 福野駅 | 
| 引渡日 | 相談 | 
| 取引態様 | 専任媒介 | 
特記事項
特記事項
・駐車可能台数:アルミカーポート2台 駐車スペース6台
 駐車場代は、家賃に含まれています。
・2階を増床することで住居としての利用も可能です
スタッフコメント
・アメリカを代表するブランド「バーモントキャスティング」製の薪ストーブが設置されており、使用も可能です。
 火の温かさや、炎の揺らぎによる癒しは、他には代えがたい物があります。
 不要な場合には、薪ストーブの撤去も可能です。
・梁の見える室内は、開放感のある落ち着いた空間が感じられます。
 実際の室内を見てみたいと言う方は、当社までお問い合わせください。
 
 
 
 
 
 
 
 
 
 
 
 
 
 
 
 
 
 
 
 
 
 
 
 
